• In primo piano
  • In vendita

SIRMIONE BILOCALE AL PIANO PRIMO

SIRMIONE

220.000 €

Descrizione

SIRMIONE COLOMBARE in palazzina centralissima vendita di grazioso bilocale ben tenuto e in zona residenziale abitata.
L’immobile è composto da 7 appartamenti con ampio giardino condominiale.
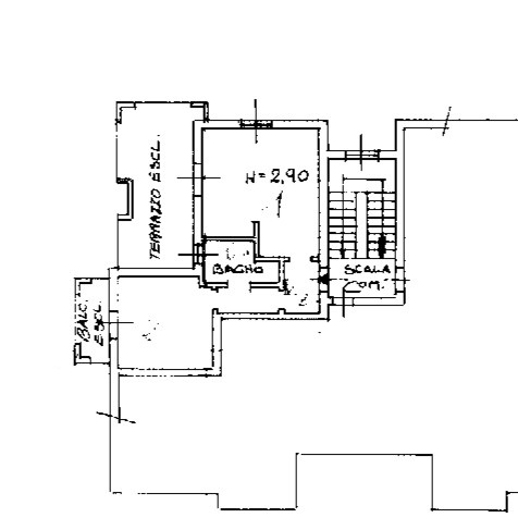
Il bilocale si trova al piano primo ed è composto da piccolo soggiorno con un bellissimo terrazzo di 16 mq rivolto a sud-ovest, molto soleggiato e abitabile, corridoio, camera con balcone e bagno finestrato. La proprietà è completata da un box singolo al piano seminterrato.
La zona è centralissima, proprio di fronte alla chiesa e a 100 metri dal supermercato più vicino, oltre a tutti gli altri negozi di prima necessità,
in pochi minuti a piedi si trova la bella passeggiata al lago fino al centro storico.
Questo appartamento per la sua centralità, la metratura e per il garage di proprietà è adatto sia da investimento per affitti brevi che come prima abitazione per una coppia.

Abitazione mq 45 + balconi mq 18 + garage mq 14 per un totale di 61 mq commerciali.

Annuncio a carattere informativo e commerciale: i dati riportati non hanno valore contrattuale e possono essere soggetti a modifiche.

Caratteristiche

Tipologia

BILOCALE

Anno costruzione

1977

Riscaldamento

AUTONOMO

MQ

comm. 61

Camere

1

Bagni

1

Garage

SI

Dettagli

Riferimento
B-39-25
Prezzo
220.000 €
Piano
PRIMO
Classe energetica
E Epgl 268,38
Giardino
No
Terrazzo
Si
Piscina
No
Balcone
Si
Ascensore
No
Vista Lago
No
Spese Condominiali
€ 800 ANNUE

Planimetria

 

 

Location



SIRMIONE - VIA SAN FRANCESCO 13

Richiedi informazioni

Avete modo di richiedere informazioni circa l'immobile visualizzato. Inserite i vostri dati e verrete contattati quanti prima.



Acquistare una casa vi renderà felici e se lo farete con noi, lo sarete ancora di più !!